鄭州杰凱專業的粉體立式垂直螺旋上料機制造商,可以根據用戶現場定制不同尺寸的設備,該機運行平穩,工作可靠、占地面積小,可設計為移動式,可配置自動上料控制系統。

粉體立式垂直螺旋上料機是工農業各部門機械化運輸工作的主要設備,能大大減輕勞動強度,提高工作效率,具有廣泛的應用領域。廣泛用于建材.化工.電力.冶金.煤炭.糧食等工業,粉體立式垂直螺旋上料機用于輸送粉末及顆粒及塊狀、顆粒狀及塊狀物料,如煤灰、渣、水泥、谷物等,物料溫度在200℃以下。
粉體立式垂直螺旋上料機特點
1。適用于糧食及飼料工業中的各種粉粒及顆粒物料,中間產品及成品的輸送;
2. 結構緊湊,占地面積小;
3. 結構簡單,工作可靠,操作簡便,成本較低;
4. 可在輸送過程中完成混合攪拌或冷卻等其他工藝。
粉體立式垂直螺旋上料機的優點:
1。上料機是利用螺旋旋轉將物料向前擠壓,同時使物料向前推進。
2. 上料采用螺旋強制運動,因此,螺旋上料器不受物料比重及物料流動的影響。
3. 上料能垂直上料,能將物料送到較高的地方,同時減少輸送行程。
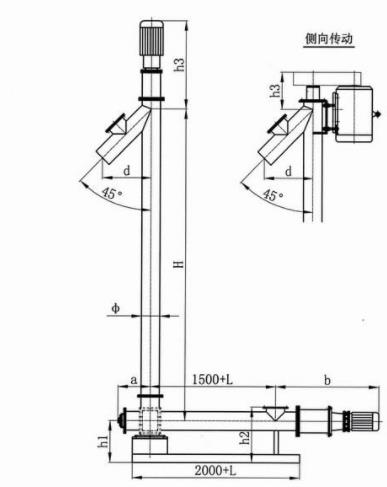
送料技術參數:
1. 輸送高度:(根據客戶要求定制)
2. 整機功率:(如:AC380V50HZ.1.5KW3.
3. 整機重量:80Kg
4. 4.輸送量:3m3/h
5. 5.料倉容量:100L。
立式螺旋上料裝置主要技術參數:
請注意項目jk-600 jk-1000 jk-2000 jk-3000。
電動機功率(kw)1.5 1.5 2.2 2.2。
推壓電動機的功率0.55 0.75 0.75 0.75
進料管通徑102 102 114 133。
配料(kg/h) 600 1000 2000 3000。
物料箱容(kg)80 150 200 250。
物料箱號(cm)65*65*80100*75*80120*80*80160*80*80*80。
機械重(kg)80150200300。
鄭州粉體立式垂直螺旋上料機的結構及說明:
1.該機是一種非基礎固定型,由傳動電機.減速箱.殼管.螺旋體按順序連接成一體。
2.軸端和螺旋體用漸開線花鍵聯接,裝拆方便,承載力大,安全可靠。
3.粉體立式垂直螺旋上料機是由鋼管通過法蘭連接的各個部件組成的整體,剛性好,可任意選擇工作位置及工作姿態,并可任意拆卸和移動。
4.進料口可根據施工現場條件制作所需傾角,并與其他配套設備連接固定。
5.本機采用盤形鋼帶整體聯接刀片,螺旋面精度高,內孔外徑螺旋距尺寸準確,輸送條件好。
粉體立式垂直螺旋上料機的結構及說明:
1。本機為非基礎固定式,由傳動電機.減速箱.殼管.螺旋體按順序連接,合為一體。
2.軸端和螺旋體用漸開線花鍵聯接,裝拆方便,承載力大,安全可靠。
3.輸送機殼體是由鋼管通過法蘭連接的各個部件組成的整體,剛性好,可任意選擇工作位置及工作姿態,并可任意拆卸和移動。
4.進料口可根據施工現場條件制作所需傾角,并與其他配套設備連接固定。
5.本機采用盤形鋼帶連軋一體刀片,螺旋面精度高,內孔外徑螺旋距尺寸準確,輸送工況好。




客服1